naziv projekta: Bazen Gradski vrt Osijek
lokacija: Osijek
investitor: grad Osijek

projekt: 2009 _ natječajni rad
realizacija:
bruto površina: 6.700 m2

projektni tim:
Zoran Brakus
Gordana Kovačić
Darinka Brakus
Anja Brakus





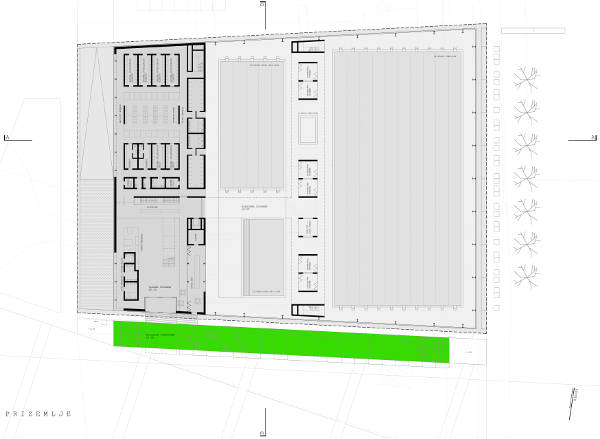
Romantični ambijent gradskog vrta, nekadašnji Stadtgarten, postoji još samo u memoriji građana Osijeka. Od svega, preostao je samo naziv dijela grada bez obilježja vrta ili parka. Prihvaćamo memoriju stanovnika kao kontekst, želju i žal građana za zelenilom kao motivaciju. Građevina je „bijela transparentna tvrđa“ koja komunicira sa okolinom i uz koju su omeđeni ozelenjeni potezi. Duž južnog pročelja je ozelenjeni potez prostora ulaza i terasa dok se uz istočnu ostakljenu stranu protežu drvoredi sa klupama. Zelenim potezima uz novu građevinu vraćeni su mikro ambijenti nekadašnjeg gradskog vrta.




© 2017 Brakus