naziv projekta: Rekonstrukcija i sanacija bivše tvornice DTR-a, Zagreb
lokacija: Krajiška 20, Zagreb
investitor: Hrvatska agencija za civilno zrakoplovstvo

projekt: 2016 _ natječajni rad
realizacija:
bruto površina: 4.900 m2

projektni tim:
Darinka Brakus
Đurđica Komar
Gordana Kovačić
Zoran Brakus



Bivša tvornica DTR-a se nalazi u gusto izgrađenom bloku Donjeg grada, unutar povijesne cjeline grada Zagreba. Zgrada DTR-a je ulična zgrada, građena krajem pedesetih godina prošlog stoljeća i djelo je arhitekta Lavoslava Horvata. Zgrada je evidentirana i upisana u Registar kulturnih dobara Republike Hrvatske. Tvornica predstavlja istaknuto djelo arhitekta Horvata, specifične funkcionalne dispozicije i skladnog oblikovanja. Autor je projektom predvidio mogućnost prenamjene tvornice u višestambenu zgradu. Ulično pročelje je vrijedna interpolacija u zapadnom uličnom nizu Krajiške ulice.



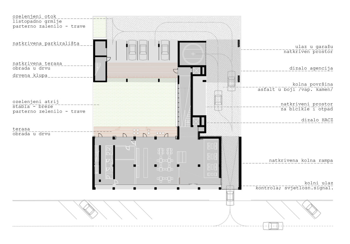
Planirani zahvat je rekonstrukcija tvornice DTR-a te dogradnja u dvorišnoj građevini. Osnovna ideja je da povijesna građevina, rekonstrukcijom, adaptacijom i interpoliranjem novih sadržaja mora sačuvati svoj autentični izvorni karakter. Temeljem te osnovne postavke dati su principi rekonstrukcije. Ulično pročelje će se obnoviti u cjelosti kao faksimil izvornim materijalima i strukturi. To je omogućeno uvođenjem nove staklene membrane distancirane od linije pročelja. Svi prostori unutar građevine trebaju biti prepoznatljivi i odavati duh izvornog oblikovanja.



Prostor u prizemlju se u potpunosti otvara, saglediv je iz ulice, prezentiraju se specifični elementi tipologije gradnje. Naglašeno je sagledavanje prostora prizemlja iz uličnih vizura, pogled se kroz staklene opne pruža do ozelenjenog atrija u dvorištu.

Novi uredski prostori su interpolirani unutar postojeće strukture.

Distancirano od linije povijesnog pročelja uvodi se staklena membrana.
Ulično pročelje se obnavlja kao faksimil izvornim materijalima i strukturi.




© 2017 Brakus